Logo QIMMO

Location - NIEPPE - LOCAL D'ACTIVITE

Photo principale de l'annonce
Ref :59_0001
Type de transaction
Location
Type de bien
LOCAL D'ACTIVITE
Ville
NIEPPE
Surface
276.40 m²
Loyer
Nous consulter pour obtenir les conditions financières

Description

Opportunité Immédiate : Cellule d'Activité Neuve de 276 m²

Saisissez l'opportunité de louer une cellule d'activité de premier choix au sein d'un bâtiment neuf de 900 m², alliant modernité et performance.

Les points forts de l'offre :

  • Visibilité Stratégique : Emplacement privilégié bénéficiant d'une excellente exposition depuis un grand axe routier, garantissant une visibilité maximale pour votre enseigne.

  • Disponibilité Immédiate : Local prêt à accueillir votre activité dès aujourd'hui.

  • Surface Optimisée : Une cellule de 276 m², conçue avec des matériaux de qualité pour répondre aux exigences des professionnels les plus pointilleux.

Ne manquez pas ce dernier lot disponible dans un ensemble immobilier de standing, idéal pour conjuguer image de marque et efficacité opérationnelle.

Prestations

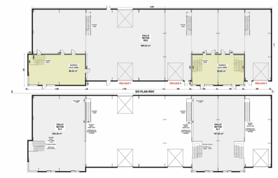
2 cellules de 276,40 m² Bureaux en RDC + R+1: 59,20 m² Atelier RDC: 156,60 m² Atelier mezzanine 60,60 m² Bâtiment béton Hauteur libre: 6 m Une porte sectionnelle: 3,5 m x 4 m

CelluleBureaux RDC +R+1AtelierAtelier R+1ParkingsEtat
259,20 m²156,60 m² 60,60 m²4 placesDisponible
359,20 m²156,60 m² 60,60 m²4 placesLoué

Localisation

Situation

À 4,5 kms de l'autoroute A25
À proximité immédiate de deux sorties d'autoroute: Nieppe et Bailleul
À proximité du centre ville de NIEPPE
Sur axe passant D933 qui est très fréquenté (environ 8 000 V/J)

Énergie

DPE
DPE en attente
GES
GES en attente